
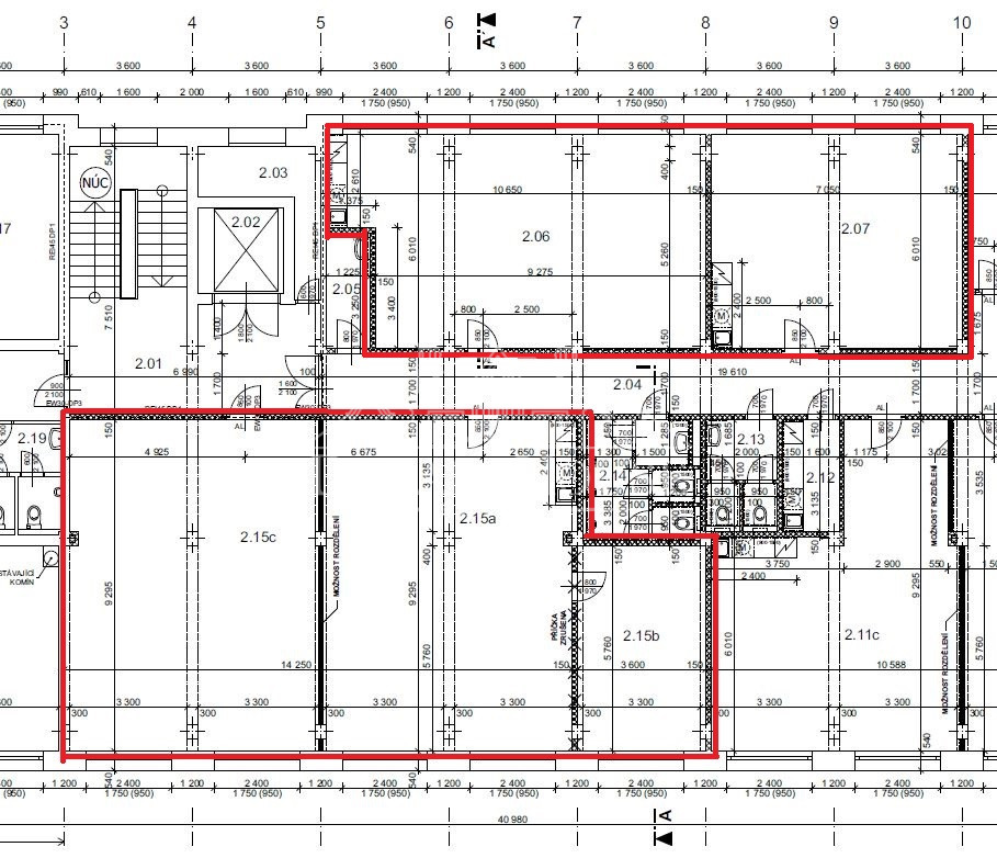
Dovolujeme si Vám nabídnout k pronájmu kancelářské prostory o celkové ploše 253m2, situované v 1. patře hlavní administrativní budovy výrobního/skladovacího Areálu PM v Praze 10 - Dolních Měcholupech s vjezdem „A“ z ul. Za Zastávkou.
Kancelářské prostory (s ozn. A12/2.15 a 2.06+2.07) se skládají z 2 větších souborů kanceláří (152,27m2 a 101,11m2), které jsou klimatizovány a vybaveny vlastními kuch. kouty. Podlahové krytiny tvoří zátěžové koberce. Kanceláře se pronajímají jako nezařízené.
Sociální zázemí (toalety páni / dámy) společné na patře.
V případě potřeby je možné pronajmout další kancelářské prostory (o ploše 41m2 nebo 58m2) taktéž umístěné v hlavní administrativní budově areálu. V areálu nyní k dispozici i pronájem skladovací či výrobní haly. Více informací na vyžádání.
Možnost pronájmu parkovacích míst vedle hlavní budovy (nájemné činí 800,-Kč/místo/měs. + DPH).
Spotřeba elektrické energie a vody účtována vždy měsíčně zpětně dle skutečné spotřeby. Naopak vytápění a užívání společného soc. zázemí či výtahu je zahrnuto paušálně v ceně nájemného.
K nastěhování od 1. 11. 2025. Prohlídky jsou možné po dohodě již nyní.
Uvedené ceny nájemného jsou bez zákonného DPH.
Preferujeme dlouhodobého nájemníka (plátce DPH).
Reklamní poutač či označení názvu společnosti možné dle dohody a za poplatek.
Případné umístění sídla společnosti (za jednorázový poplatek) není problém.
Pro více informací či termín prohlídky mne neváhejte kontaktovat.
ID nabídky: N2254
Číslo nabídky: | N2254 |
Adresa | Praha-Dolní Měcholupy, Za zastávkou |
Druh prostor | Kancelář |
Druh stavby | Smíšená |
Stav objektu | Velmi dobrý |
Typ domu | Patrový |
Plocha prostor | 253 m2 |
Plocha nejmenší | 101 m2 |
Plocha největší | 152 m2 |
Užitná plocha | 253 m2 |
Počet podlaží | 3 |
K dispozici od | 2025-11-01 |
Umístění objektu | Okraj obce |
PENB: Náročnost budovy | G - průkaz nedodán |
Sociální zařízení | ✔ |
Výtah | ✔ |
Ostraha | ✔ |
Bezbariérový přístup | ✔ |
Inženýrské sítě | Elektřina, Kanalizace, Plyn, Vodovod |
Topení | Ústřední plynové |
Doprava | Dálnice, Silnice, Autobus, MHD |
Elektřina | 230V |
Voda | Dálkový vodovod |
Parkování | ANO |
350 Kč za m2/měsíc |
+ DPH + služby (viz. popis nabídky) + příp. pronájem parkovacích míst navíc |
Tereza Karlíčková realitní makléř |
+420 735 125 325 tereza@dreamhousereality.cz |
* Prezentované informace byly nabyty v dobré víře od vlastníka nemovitosti a společnost Dream House Reality s.r.o. je zprostředkovává, coby data informačního charakteru, za jejichž správnost a úplnost nenese odpovědnost.