
Dovolujeme si Vám nabídnout k pronájmu kancelářské prostory o celkové ploše 107m2, situované v přízemí cihlového domu v Praze 3 - Žižkov, v ulici Koldínova (roh s ulicí Jeseniova), v těsné blízkosti parku Parukářka.
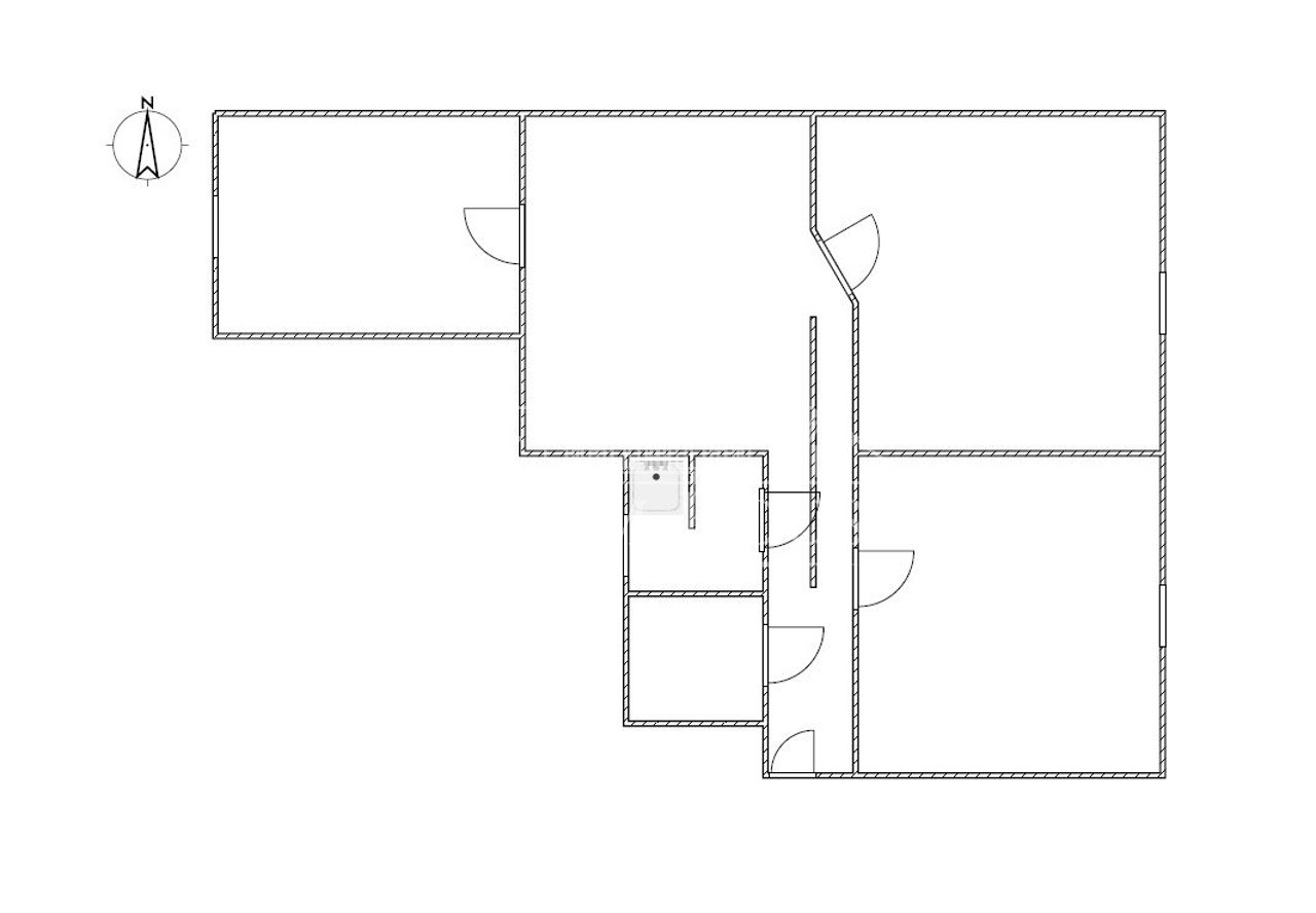
Prostory sestávající z prostorné vstupní chodby s kuchyňským koutem, 3 samostatných kanceláří (každá cca 17m2), samostatné toalety s umyvadlem, a koupelny se sprchovým koutem.
Kanceláře se pronajímají jako nezařízené (část nábytku na fotografiích je možné odkoupit od současného nájemce, více informací při prohlídce). Z vybavení zůstává ze strany pronajímatele pouze kuchyňský kout (linka s dřezem, lednicí s menším mrazákem a mikrovlnou troubou) s barovým skleněným pultem, velká vestavěná skříň.
Nová eurookna s mřížemi, vytápění zajišťuje vlastní plynový kotel s termostatem, ohřev vody pak nový průtokový ohřívač. Podlahovou krytinu tvoří zátěžové koberce (ve 2 kancelářích), dlažba a parkety (vstupní chodba a 3. kancelář).
K dispozici optický internet.
Parkování možné na ulici před domem (rezidentní parkovací zóny Prahy 3).
Sídlo společnosti samozřejmostí.
Preferujeme dlouhodobého nájemníka s účelem podnikání administrativního charakteru.
K nastěhování od 1.1.2026 (po dohodě i dříve).
Pro více informací či termín prohlídky mne neváhejte kdykoliv kontaktovat.
ID nabídky: N2257
Číslo nabídky: | N2257 |
Adresa | Praha 3, Koldínova |
Druh prostor | Kancelář |
Druh stavby | Cihlová |
Stav objektu | Velmi dobrý |
Typ domu | Patrový |
Plocha prostor | 107 m2 |
Plocha nejmenší | 17 m2 |
Užitná plocha | 107 m2 |
Sociální zařízení - popis | WC (toaleta, umyvadlo) koupelna (se sprchovým koutem) |
K dispozici od | 2026-01-01 |
Umístění objektu | Rušná část obce |
PENB: Náročnost budovy | E - Nehospodárná |
Sociální zařízení | ✔ |
Telekomunikace | Telefon, Internet |
Inženýrské sítě | Elektřina, Kanalizace, Plyn, Vodovod |
Topení | Lokální: plynové |
Doprava | MHD |
Elektřina | 230V |
Voda | Dálkový vodovod |
Parkování | ANO |
30 000 Kč za měsíc |
+ záloha na domovní služby (cca 1.000,-Kč/měs.) + přepis el. a plynu na nájemce (cca 6.000,-Kč) |
Tereza Karlíčková realitní makléř |
+420 735 125 325 tereza@dreamhousereality.cz |
* Prezentované informace byly nabyty v dobré víře od vlastníka nemovitosti a společnost Dream House Reality s.r.o. je zprostředkovává, coby data informačního charakteru, za jejichž správnost a úplnost nenese odpovědnost.