Pronájem kancelářských prostor, 107m2, Praha 3 - Žižkov, nezařízené, 3 místnosti, soc. zázemí (Pronajato)

Dovolujeme si Vám nabídnout k pronájmu kancelářské prostory o celkové ploše 107m2, situované v přízemí cihlového domu v Praze 3 - Žižkov, v ulici Koldínova (roh s ulicí Jeseniova), v těsné blízkosti parku Parukářka.

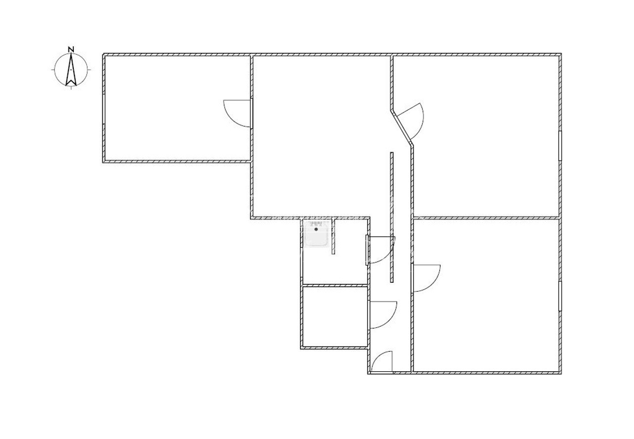
Prostory sestávající z prostorné vstupní chodby s kuchyňským koutem, 3 samostatných kanceláří (každá cca 17m2), samostatné toalety s umyvadlem, a koupelny se sprchovým koutem.

Kanceláře se pronajímají jako nezařízené (část nábytku na fotografiích je možné odkoupit od současného nájemce, více informací při prohlídce). Z vybavení zůstává ze strany pronajímatele pouze kuchyňský kout (linka s dřezem, lednicí s menším mrazákem a mikrovlnou troubou) s barovým skleněným pultem, velká vestavěná skříň.

Nová eurookna s mřížemi, vytápění zajišťuje vlastní plynový kotel s termostatem, ohřev vody pak nový průtokový ohřívač. Podlahovou krytinu tvoří zátěžové koberce (ve 2 kancelářích), dlažba a parkety (vstupní chodba a 3. kancelář).
K dispozici optický internet.

Parkování možné na ulici před domem (rezidentní parkovací zóny Prahy 3).
Sídlo společnosti samozřejmostí.
Preferujeme dlouhodobého nájemníka s účelem podnikání administrativního charakteru.


K nastěhování ihned.

Pro více informací či termín prohlídky mne neváhejte kdykoliv kontaktovat.

ID nabídky: N2280

Další informace

Číslo nabídky:N2280
Adresa Praha 3, Jeseniova
Druh prostorKancelář
Druh stavby Cihlová
Stav objektu Velmi dobrý
Typ domu Patrový
Plocha prostor 107 m2
Plocha nejmenší 17 m2
Užitná plocha 107 m2
Sociální zařízení - popis WC (toaleta, umyvadlo) koupelna (se sprchovým koutem)
K dispozici od 2026-01-13
Umístění objektu Rušná část obce
PENB: Náročnost budovy E - Nehospodárná
Sociální zařízení
Telekomunikace Telefon, Internet
Inženýrské sítě Elektřina, Kanalizace, Plyn, Vodovod
Topení Lokální: plynové
Doprava MHD
Elektřina 230V
Voda Dálkový vodovod
Parkování ANO

Kontaktní údaje


Tereza Karlíčková
realitní makléř
+420 735 125 325
tereza@dreamhousereality.cz

Hledáte podobnou nemovitost?

* Prezentované informace byly nabyty v dobré víře od vlastníka nemovitosti a společnost Dream House Reality s.r.o. je zprostředkovává, coby data informačního charakteru, za jejichž správnost a úplnost nenese odpovědnost.